Tolles Wohnen in Feldkirch Tosters
Top sanierte Wohnung in ruhiger Wohngegend mit guter Infrastruktur und Naturnähe zum Schnäppchenpreis!

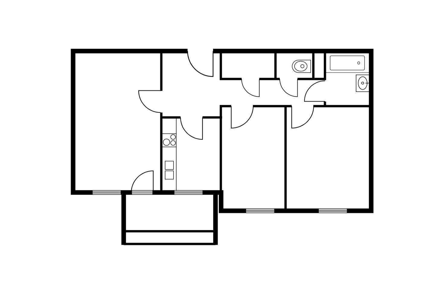
Feldkirch Tosters – eingebettet zwischen Schellenberg und Ardetzenberg – hier, in einem der wohl attraktivsten Wohn-Bezirke in der Montfortstadt, befindet sich unser jüngstes Kauf-Objekt: Die großzügige, helle und ganz neu renovierte 3-Zimmer-Wohnung (Schlafzimmer, Wohnzimmer, Kinderzimmer/Gästezimmer/Büro, Küche und Badezimmer mit separatem WC) bietet eine Fläche von knapp 70 Quadratmetern, dazu gibt´s einen gemütlichen Balkon, einen Abstellraum, ein Kellerabteil und einen Auto-Abstellplatz. Der Blick aus allen Fenstern und dem Balkon richtet sich ins Grüne bzw. auf die herrlichen Bäume des Grundstücks – die Wohnung ist also nahezu uneinsehbar. Die funkelnd neue Küche mit Gorenje-Geräten und der wunderschöne Parkettboden runden das Bild hochqualitativ ab.

Feldkirch gilt bei vielen Vorarlbergern als heimliche Hauptstadt des Landes, mit regem Kultur- und Freizeitangebot an 52 Wochen im Jahr. Die direkte Nähe zur Schweiz und zu Liechtenstein, sowie attraktiven Gastronomie- und Shopping-Möglichkeiten in der mittelalterlichen Altstadt bereichern diese Szenerie. Das neu erbaute, architektonisch beeindruckende Montforthaus wirkt dabei als zusätzlicher Magnet für abwechslungsreiche Tage – vor allem aber für schöne Abende in Feldkirch. Vor der Haustüre liegen auch die Autobahnanschlüsse in Richtung Deutschland, Tirol, die Schweiz und nach Liechtenstein. Tosters selbst gibt sehr ruhig und ermöglicht angenehmste Wohnqualität – nicht zuletzt dank der ganz in der Nähe liegenden Erholungsziele an den Ill-Auen und den zahlreichen Wandermöglichkeiten am Fuße des Schellenbergs mit der Ruine Tosters und der Parzelle St. Corneli – beides gemütlich zu Fuß erreichbar.
Download: MD-Riedteilweg





